Furán hangzik, de igaz a cím, valóban lakópark építését tervezi a lajosvárosi Szent Lajos Plébánia. Bizonyára nem ők az elsők a világon, tény viszont, hogy nem elsősorban plébániák szoktak állni a hasonló beruházások mögött. Az új házak között helyet kapna egy új plébániaépület is.
A „Szent Lajos Plébánia és lakópark” a Lajosváros egyik mostoha területén, az egykori Hetes iskola helyén épülne az Aradi, Kolozsvári és Déva utcák között. A 6 400 négyzetméteres területre még réges-régen a Fenstherm szándékozott építeni egy 24 lakásos társasházat, aztán hogy ez nem jött össze, az üres telek 2014-ben eladóvá vált. Érdekességképp az ingatlanárak változásáról: 2014-ben még 99 millió forintért kereste gazdáját a 6 400 (!) négyzetméteres telek, ma ugyanígy a Lajosvárosban egy 416 (!) négyzetméteres telket 60 millió forintért kínálnak. 2014-óta nincs hírünk a telekről, nem tudjuk, hogy ekkor vásárolta-e meg a plébánia, de talán nem is lényeges kérdés ez, ennél fontosabb, hogy pár éven belül talán rendeződhet a kertvárosi szégyenfolt sorsa.
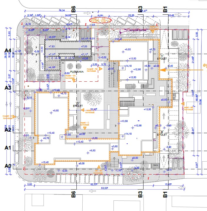
A lakóparkról egyelőre nem érhetőek el részletek, így sem a lakásszáma, sem az építés dátuma nem ismert. A forrásként használt bizottsági ülési rendelettervezetbe mindössze egy kis tervrajz került be, ezt mindenesetre mutatjuk az érdeklődőknek:

Kapcsolódó letöltés:
Rendelettervezet(A rendelettervezet nem csak ezt a témát tárgyalja és a teljes mérete 54 MB!)
